★現地写真




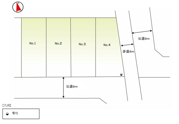
★区画図

★完成イメージパース

※予想図のため形状・配置・色など、実際のものと異なる場合がございます。
★売主直売の安心ポイント★
●通常必要となる仲介手数料がかからず、総額を抑えた購入が可能
●現地・周辺環境を把握した担当者が直接ご説明
●ご予算に合わせた建物・資金計画をワンストップでご提案
【 建 築 条 件 付 売 地 】とは、
①土地の売買契約締結後3か月以内に、(株)一平不動産と建物の建築請負契約を締結することを条件に販売をします。この期間内にもし建築請負契約が締結されなかった場合は、土地の売買契約は白紙となり、受領済の金員に関しては、全額お返し致します。②間取りなどのプランにつきましては、弊社設計担当者とお打ち合わせの上、ご予算に応じてお客様が自由に決定頂けます。③建物参考価格のほかに、地盤改良工事費・オプション費用等が発生した場合、別途費用が必要となります。
※建物参考価格は、現場により 2,300万円(税込)もしくは 2,380万円(税込)と異なっております。 ※詳細につきましては、営業部までお問い合わせください。



























