★現地写真



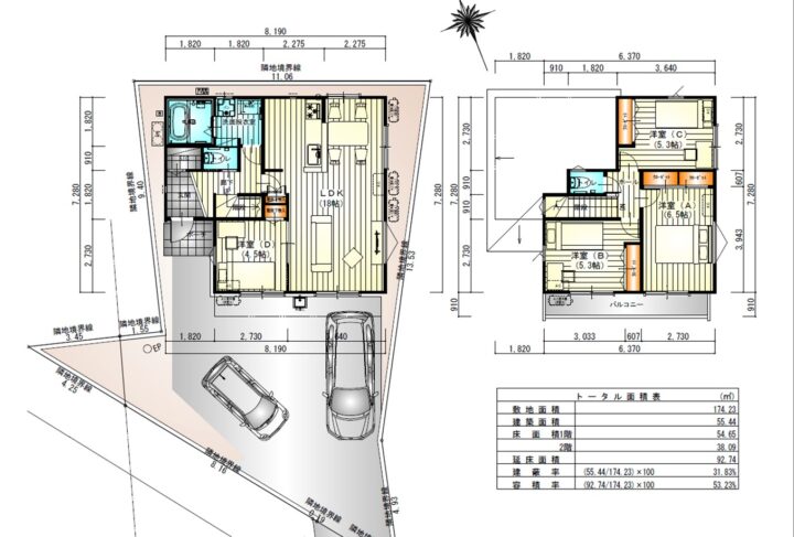
★2号棟 間取り図

★周辺環境
★現地写真



★2号棟 間取り図

★周辺環境
| 築年月 | 新築/中古 | ||
|---|---|---|---|
| 建物面積 | 92.73m² | 建物構造 | 木造 |
| 土地面積 | 132.13m² | 価格帯 | 4,880万円(税込)~ |
| 地目 | 宅地 | 用途地域 | 第一種低層住居専用 |
| 都市計画 | 市街化区域 | 取引形態 | 売主 |
| 総区画数 | 全2区画 | 販売区画数 | 2 |
| 位置指定道路2 | |||
| 設備・条件 | 三口コンロ システムキッチン 食器洗い乾燥機 洗髪洗面化粧台 浴室乾燥機 温水洗浄便座 床下収納 W.INクローゼット TVドアホン 都市ガス 公営水道 排水下水 バルコニー フローリング 全室南向き LDK15畳以上 最寄駅へのアクセス良好 駐車場2台以上可 全居室収納あり 周辺環境良好 子育て充実 キッチン 設備 充実 | ||
| 学区 |
室田小学校・円蔵中学校 開発分譲地、平坦で閑静な住宅地 |
建築確認番号 | 第2025SBCー確01301H号 |