★現 地 写 真







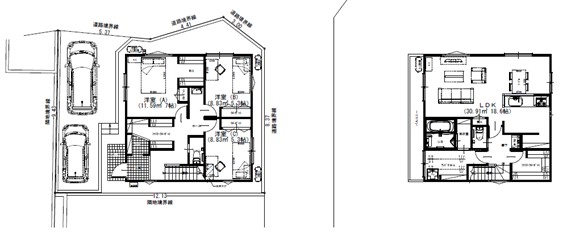
★区 画 図

№5区画 ご参考プラン
①2階リビング

②1階リビング

★売主直売の安心ポイント★
●通常必要となる仲介手数料がかからず、総額を抑えた購入が可能
●現地・周辺環境を把握した担当者が直接ご説明
●ご予算に合わせた建物・資金計画をワンストップでご提案

★現 地 写 真







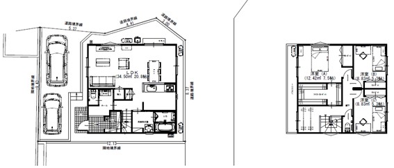
★区 画 図

№5区画 ご参考プラン
①2階リビング

②1階リビング

★売主直売の安心ポイント★
●通常必要となる仲介手数料がかからず、総額を抑えた購入が可能
●現地・周辺環境を把握した担当者が直接ご説明
●ご予算に合わせた建物・資金計画をワンストップでご提案

| 地目 | 宅地 | 用途地域 | 第一種中高層住居専用 |
|---|---|---|---|
| 都市計画 | 市街化区域 | 取引形態 | 売主 |
| 総区画数 | 全5区画 | 販売区画数 | 1 |
| 建ぺい率 | 60% | 容積率 | 200% |
| 位置指定道路2 | |||
| 設備・条件 | 角地 建築条件無 都市ガス 公営水道 排水下水 自由設計対応 最寄駅へのアクセス良好 駐車場2台以上可 角地 周辺環境良好 子育て充実 | ||
| 学区 |
土棚小学校・春日台中学校 |
建築確認番号 | |